
Welcome to The Chaffinch
Step into contemporary comfort with The Chaffinch, a beautifully designed 2-bedroom home that effortlessly blends modern style with eco-conscious living. Finished to a high standard, this property offers everything you need for a sustainable and luxurious lifestyle.
Key Features:
Set in a charming semi-rural location, this thoughtfully designed home is perfect for first-time buyers, those seeking to right-size, downsize or anyone looking for a fresh start close to nature. With premium finishes, modern comforts, and the Lincolnshire Wolds just a stone's throw away, this is countryside living with convenience built in.
INCLUDED AS STANDARD:
___________________________________________________
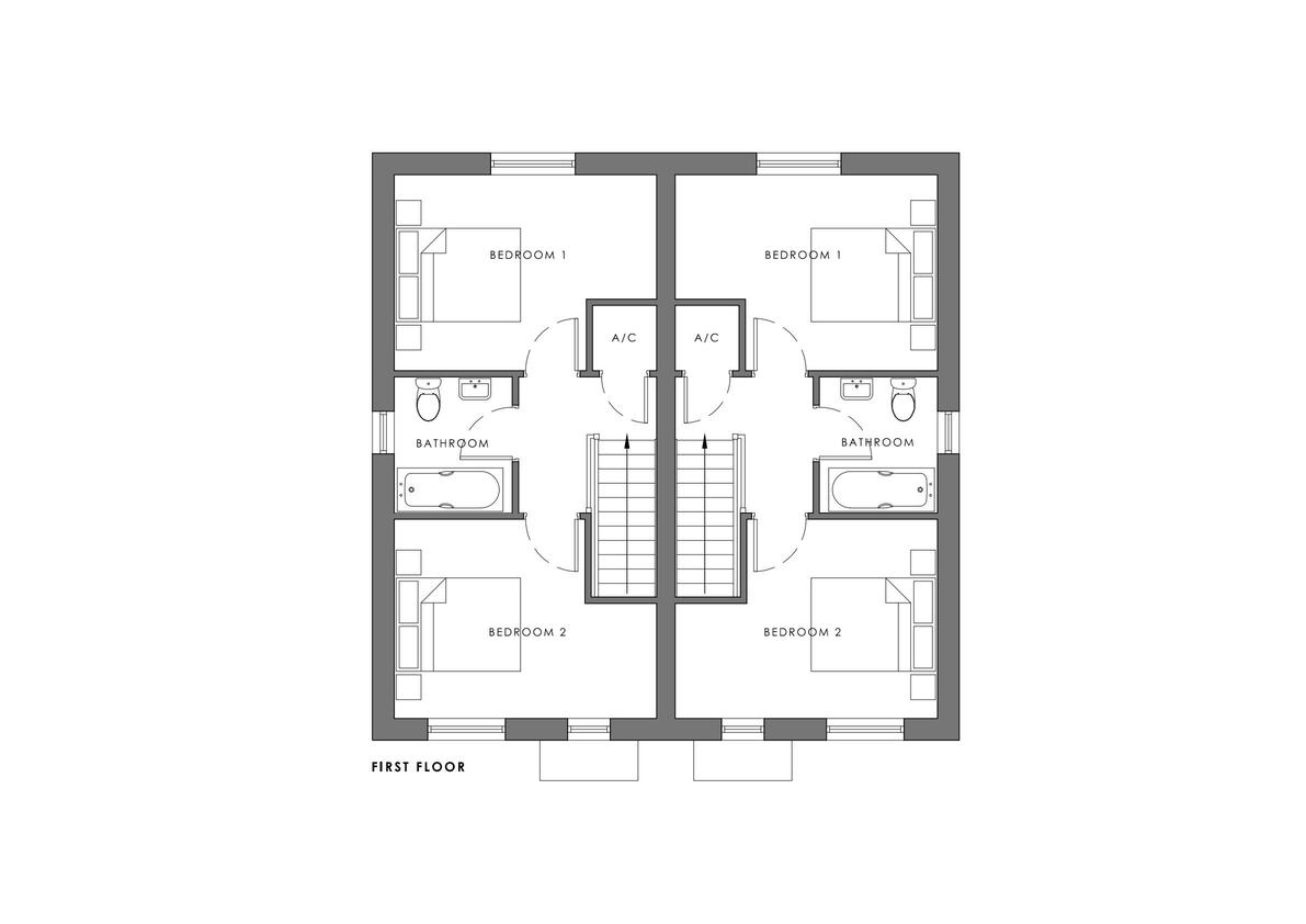
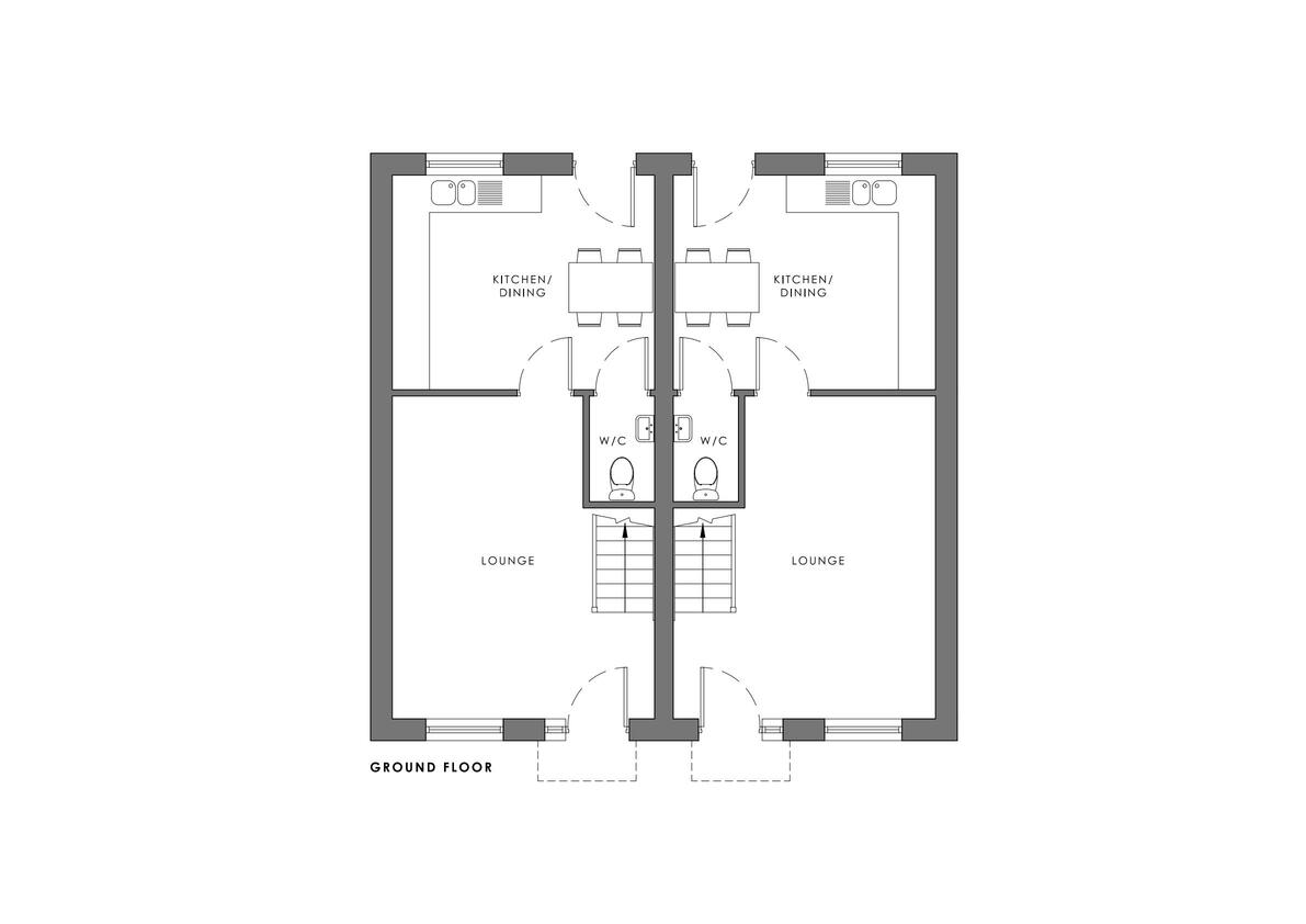
Room Dimensions (Approx.):
Ground Floor:
Kitchen/Dining: 3.4m x 4.2m
Lounge: 5.1m x 4.3m x 3.0m
W/C: 1.7m x 1.0m
First Floor:
Bedroom 1: 3.1m x 4.3m x 2.0m x 3.0m
Bedroom 2: 4.2m x 3.2m x 3.0m x 1.8m
Main Bathroom: 2.1m x 1.9m
Council Tax Band: TBC
Service Charge: £210.86 / £310.86 per annum (approx)
Reserve Early to Personalise Your Home:
The earlier you reserve, the more choices you'll have to tailor finishes to your style and preferences.
For further information or to arrange a viewing, please contact our sales team today.
